top of page
Modelo 004
Modelo 004
186,71 m2
2
4
Casa modular de hormigón dinámica y moderna; vivienda formada por dos volúmenes horizontales que se extiende hacia el entorno a través de agradables porches y terrazas.
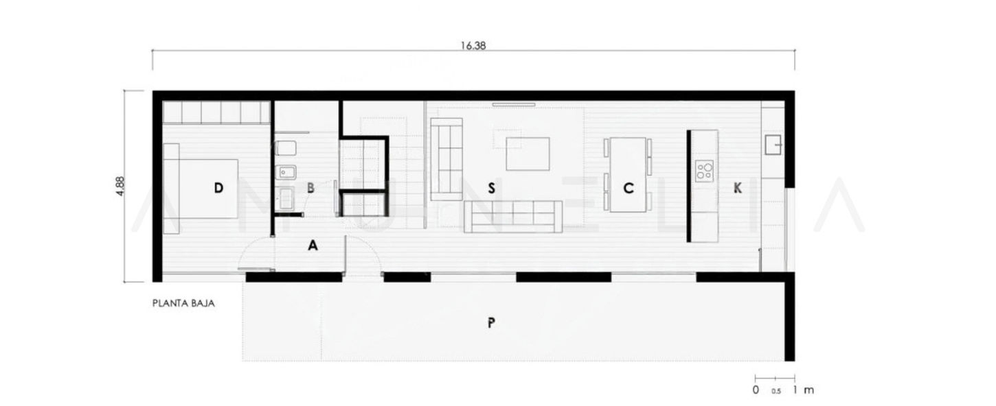
La fachada con líneas horizontales desplazadas entre sí le confieren una estética asimétrica actual. Se distribuye en dos plantas; la planta baja con la zona de día compuesta por un amplio salón-comedor comunicado con la cocina con una circulación circular, además de un dormitorio doble, baño y un gran porche donde relajarse al aire libre.
En la planta primera se encuentra la zona de noche que aloja dos dormitorios simples y un dormitorio doble así como un baño completo.
bottom of page



